非掲載物件を含めたクアラルンプール内のすべての物件の売買仲介サポート(購入~賃貸管理~売却まですべて)しています。私たちは売り手(=オーナー側)より手数料をお支払いいただいているため、買い手(=投資家)のお客様が私たちに支払う仲介手数料は一切ありません。つまり、無料です。なお、弊社に限らず、マレーシアのローカル不動産会社は「仲介手数料0%」が基本ですので、私たちが特別な料金設定をしているわけではありません。(一方、一般的な海外不動産業者の場合、物件代金の3~5%が別途請求されることが多い印象です)

掲載されていない物件を含めてクアラルンプール内すべての物件の賃貸仲介サポートが可能です。なお、私たちは不動産オーナーから賃貸仲介手数料をお支払いいただくため、入居者であるお客様が私たちに支払う賃貸仲介手数料は一切ありません。つまり、完全無料です。(※2025年3月現在、お問合せ殺到につきサポートの質を担保するため家賃RM5000~のお客様のみに限らせていただいております)
28 Mont Kiara は、高級住宅地モントキアラに位置する新しくモダンなコンドミニアム開発です。Mont Kiara Banyanのすぐ隣に立地しています。本プロジェクトは、建設品質評価基準であるCONQUAS(Construction Quality Assessment System)および環境性能評価であるGreen Mark Index Assessmentの基準に基づいて開発されました。
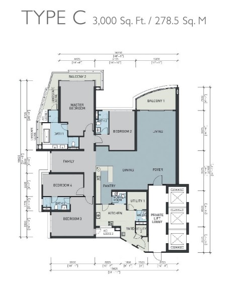
建物は地上40階建てのツインタワー2棟で構成され、永久所有権(フリーホールド)の5.81エーカーの敷地に、合計460戸が建設されています。住戸面積は、3+1ベッドルーム・バスルーム5室タイプが2,535~2,700平方フィート、4+1ベッドルーム・バスルーム5室タイプが3,000平方フィートとなっています。さらに、5,790~6,465平方フィートの広さを誇るペントハウスが6戸用意されています。





周辺環境も非常に充実しており、利便性の高さから外国人駐在員にも人気の高い物件です。近隣には3つのインターナショナルスクールがあり、ショッピングモール、スーパーマーケット、レストランも多数あります。また、車で短時間の距離にMasjid Wilayah、Matrade、KL Court Houseがあります。
本物件はモントキアラ地区の中心に位置し、Sri Hartamas、Damansara Heights、Bukit Kiaraと隣接しています。DUKEハイウェイ、SPRINTハイウェイ、NKVEハイウェイへのアクセスも良好で、Damansara、Petaling Jaya、クアラルンプール中心部、Shah Alamへの移動もスムーズです。
28 Mont Kiara は、マレーシアの有名不動産デベロッパー Sunrise Berhad(サンライズ・バーハド) によって開発された高級コンドミニアムプロジェクトです。
Sunrise Berhad は、クアラルンプールを中心に多くの高級住宅や複合開発プロジェクトを手がけてきた大手デベロッパーで、特にモントキアラ地区では複数の大型開発実績があります。プロジェクトは建設品質評価(CONQUAS)や環境性能評価(Green Mark Index Assessment)などの厳しい基準にも準拠しており、高い品質と住環境の快適さを重視して企画・設計されています
Compare listings
比較