非掲載物件を含めたクアラルンプール内のすべての物件の売買仲介サポート(購入~賃貸管理~売却まですべて)しています。私たちは売り手(=オーナー側)より手数料をお支払いいただいているため、買い手(=投資家)のお客様が私たちに支払う仲介手数料は一切ありません。つまり、無料です。なお、弊社に限らず、マレーシアのローカル不動産会社は「仲介手数料0%」が基本ですので、私たちが特別な料金設定をしているわけではありません。(一方、一般的な海外不動産業者の場合、物件代金の3~5%が別途請求されることが多い印象です)

掲載されていない物件を含めてクアラルンプール内すべての物件の賃貸仲介サポートが可能です。なお、私たちは不動産オーナーから賃貸仲介手数料をお支払いいただくため、入居者であるお客様が私たちに支払う賃貸仲介手数料は一切ありません。つまり、完全無料です。(※2025年3月現在、お問合せ殺到につきサポートの質を担保するため家賃RM5000~のお客様のみに限らせていただいております)
ザ・ノースショア・ガーデンズはデサ・パークシティのセントラルパークに面した40階建てタワーマンションです。厳選された建材、洗練されたアメニティ、そして万全のセキュリティ体制。 「住む」を超えた、「守られ、満たされる」暮らしを追求したハイエンドコンドミニアム。

高層コンドミニアムならではの魅力として、バルコニーからは果てしなく広がる緑地や近代的な街並みを楽しむことができます。朝焼けに染まる湖、日中の光を受けてきらめく水面、夕焼けに包まれるデサパークシティの街並み。一瞬たりとも飽きさせない、生きた景色がここにあります。


ザ・ノースショア・ガーデンズは 1エーカーの土地に建つ 40階建て・単棟構造の高層コンドミニアムで、274戸のユニットが配置されています。ユニットの広さは 904〜6030平方フィートと幅広いタイプがあります。
床材には高品質のセラミックタイルが使用され、外壁は耐候性塗料、内装にはプレミアムエマルションペイントが施されており、快適でラグジュアリーな住環境が実現されています。

それぞれ異なるテーマで設計された「ChillOut」と「HangOut」は、ライブラリ、音楽ルーム、ムービールーム、アクティビティホールなどを備え、勉強やリラックスに最適な場を提供。創造性と社交性を育む空間です。


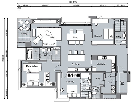
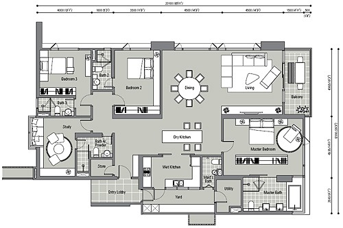
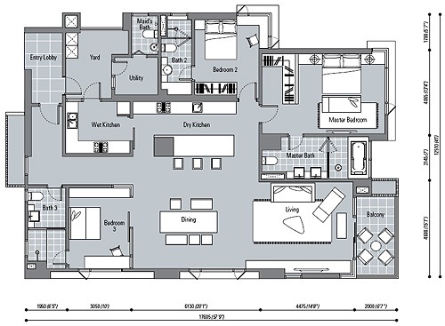
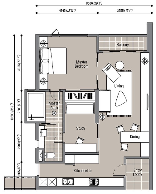
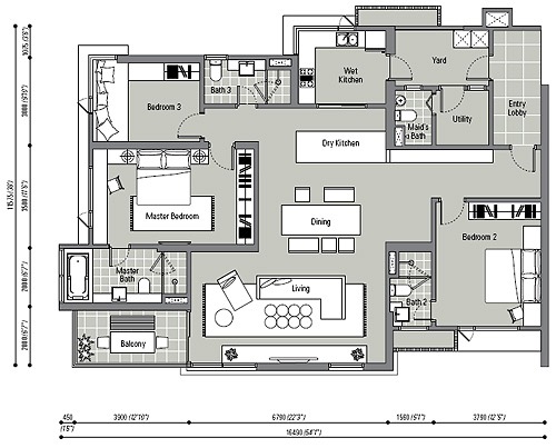
Type A:1808 / 1830 / 2013 sqft(3+1ベッドルーム)
Type B:904 / 990 sqft(1+1ベッドルーム)
Type B2:915 sqft(1+1ベッドルーム)
Type C1:2110 / 2164 / 2519 sqft(3+1ベッドルーム)
Type C2:1948 / 2002 sqft(3+1ベッドルーム)
Type D1 & D2:1485 / 1507 sqft(2+1ベッドルーム)
Type E:2454 / 2476 sqft(4+1ベッドルーム)
Penthouse:6030 sqft(5ベッドルーム)


立地は非常に優れており、Persiaran Residen から Jalan Residen Utama へアクセスできるほか、反対側には 北南高速道路(PLUS)や Jalan 1/62b があり、クアラルンプール市内主要部への移動がスムーズです。

開発名:The Northshore Gardens
所在地:デサ・パークシティ、クアラルンプール
開発者:Desa Kipcity Sdn Bhd
総戸数:274戸
間取り:Type A, Type B, Type B2, Type C1, Type C2, Type D1 & D2, Type E, ペントハウス
所有権:永久所有権(フリーホールド)
完成予定:2010年
Compare listings
比較