非掲載物件を含めたクアラルンプール内のすべての物件の売買仲介サポート(購入~賃貸管理~売却まですべて)しています。私たちは売り手(=オーナー側)より手数料をお支払いいただいているため、買い手(=投資家)のお客様が私たちに支払う仲介手数料は一切ありません。つまり、無料です。なお、弊社に限らず、マレーシアのローカル不動産会社は「仲介手数料0%」が基本ですので、私たちが特別な料金設定をしているわけではありません。(一方、一般的な海外不動産業者の場合、物件代金の3~5%が別途請求されることが多い印象です)

掲載されていない物件を含めてクアラルンプール内すべての物件の賃貸仲介サポートが可能です。なお、私たちは不動産オーナーから賃貸仲介手数料をお支払いいただくため、入居者であるお客様が私たちに支払う賃貸仲介手数料は一切ありません。つまり、完全無料です。(※2025年3月現在、お問合せ殺到につきサポートの質を担保するため家賃RM5000~のお客様のみに限らせていただいております)
Park Seven / Park 7 は、クアラルンプール中心部の
KLCC エリア、Persiaran KLCC 沿いに建つ高級分譲コンドミニアムです。
周囲を高層ビル群に囲まれながらも敷地内や周辺に緑地を備えた、静かな住宅環境が特徴です。
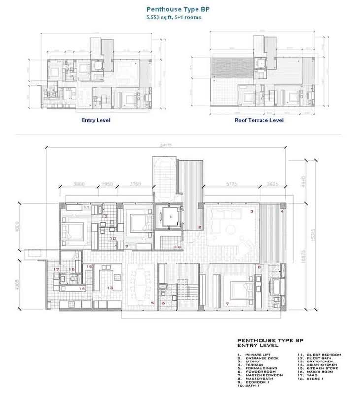
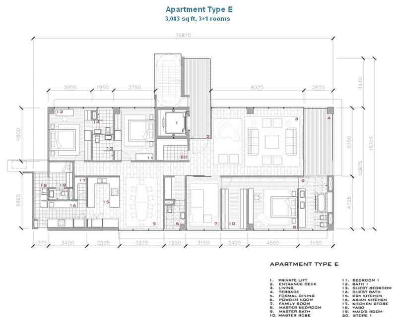
本物件は、マレーシア初の耐震構造を採用した住宅建築として知られています。設計思想は「バック・トゥ・ベーシック」と現代建築の融合で、打放しコンクリート、磨き上げ花崗岩、木材など自然素材を多用しています。外観・内装ともにグレーとチャコールを基調とした落ち着いたデザインで統一されています。
住戸にはプライベートリフトロビー、270度ビュー、天井高を確保するフラットスラブ構造、吹き抜けの共用デッキなど高級レジデンスならではの仕様が備えられています。



周囲には大使館や王族関連施設、高級住宅が並ぶ、KLでも特に格式の高い住宅エリアが形成されています。
また、徒歩〜車数分圏内に大型商業施設が集中しています。
代表的な商業施設
飲食店・ナイトライフ・カフェもブキッ・ビンタン一帯に集中しており、都市生活の利便性はKLトップクラスです。
さらにゴルフ好きには Royal Selangor Golf Club が約300mの距離にあります。
パーク・セブンを開発したのは、マレーシアの不動産会社 SDB Properties(親会社:Selangor Dredging Berhad)です。
同グループは1962年に設立され、もともとは錫(すず)鉱山会社としてスタートしました。その後1980年代から不動産事業へ転換し、現在は住宅開発・不動産管理・ホテル事業を中心とする企業へと発展しています。
マレーシア証券取引所に上場しており、現在は「デザイン性の高い小規模高級住宅」を手掛けるブティック系デベロッパーとして位置付けられています。
Compare listings
比較